Listed by Sabrina O'Keefe of Hometown Property Group
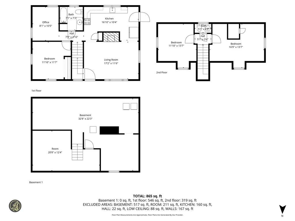
OFFER DEADLINE SET FOR MONDAY 2/2 AT 6PM. Welcome to this Charming 1935 Bow Cape! This well-maintained home offers three bedrooms and two baths, blending classic New England character with thoughtful updates for today's buyer. A brand-new 3 bedroom, 1250-gallon Septic System has just been installed! Inside, you will appreciate the fresh updates throughout, including newly painted rooms, new carpeting and new flooring, creating a bright and move-in-ready feel. One full bathroom and bedroom located on the first floor. Kitchen includes new LED lighting and plenty of storage space. First floor office. Living room with fireplace and mantle. Two additional bedrooms located on the second floor and a 1/2 bathroom. Basement includes storage, space currently used as exercise area (equipment can stay), washer/dryer area and utility systems. Outside is a spacious and private yard with plenty of outdoor entertainment space. Front and side wood porches, wood fire pit area with included fire pit, and an awning for covered entertainment. The newly paved and widened driveway leads to a two-car detached garage with additional storage space above. Need more storage? There is a shed and a portable shed with flooring, offering exceptional storage options. The home's convenient location provides easy access to both I-89 and I-93, making commuting and travel effortless while still enjoying the charm of a quiet residential setting. Open houses will be held on Saturday 1/31 from 11am-1pm and Sunday 2/1 from 11am-1pm. Private showings also available.

Listing Tools

Property Details of 20 Grandview Road

Property Details

Interior Features

Exterior Features

Utilities and Appliances

Community

Map Location

Broker Reciprocity 

Copyright 2026 PrimeMLS, Inc. All rights reserved. This information is deemed reliable, but not guaranteed. The data relating to real estate displayed on this display comes in part from the IDX Program of PrimeMLS. The information being provided is for consumers’ personal, non-commercial use and may not be used for any purpose other than to identify prospective properties consumers may be interested in purchasing. Data last updated February 16, 2026 5:52 AM EST

 

Hi there! How can we help you?

Contact us using the form below or give us a call.

Send Us A Message:

I agree to receive marketing and customer service calls and text messages from Susan Bradley. To opt out, you can reply 'stop' at any time or click the unsubscribe link in the emails. Consent is not a condition of purchase. Msg/data rates may apply. Msg frequency varies. Privacy Policy.

Do not fill in this field:

This site is protected by reCAPTCHA and the Google Privacy Policy and Terms of Service apply.