Listed by Joseph Palmisano of BHG Masiello Concord
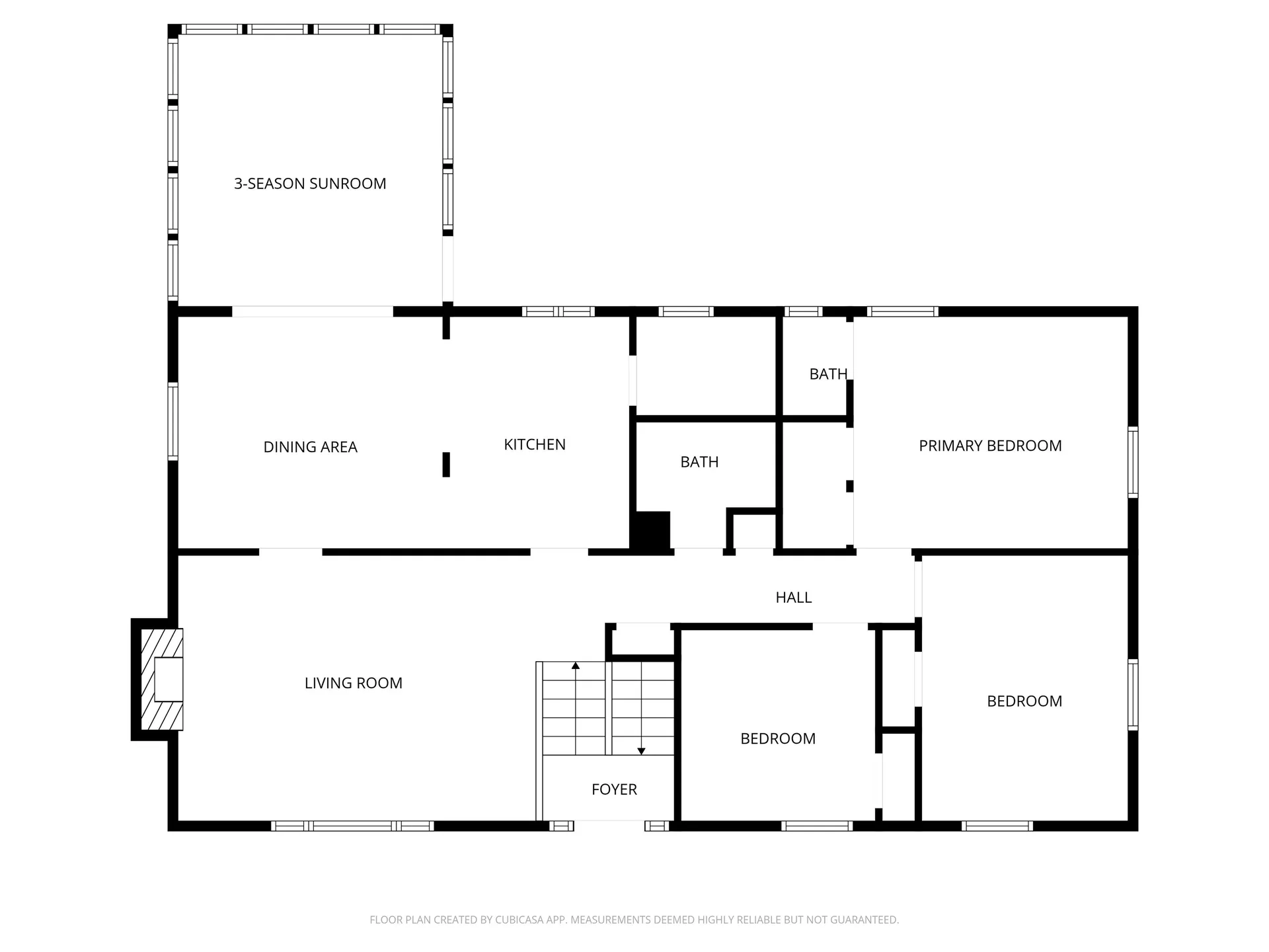
1969 Split Entry Raised Ranch in Bow, NH - 3 Bedrooms, 1 ½ Baths on 1 Acre Corner Lot. This classic Split Entry home offers timeless charm and plenty of potential in the desirable Bow school district. Situated on a partially wooded 1-acre corner lot, the home provides privacy with its slightly elevated position above the road. Inside you'll find hardwood floors throughout the main living area as well as all the bedrooms, a spacious living room with a wood-burning fireplace, and a separate dining room that opens to a large 3-season Sunroom, perfect for enjoying the outdoors. The kitchen offers ample storage and flows conveniently to the laundry area. The home features 3 well-sized bedrooms and 1 1/2 bathrooms, both of which, along with the kitchen, are ready for your customization, updates, and personal touch. The lower level includes a large finished family room with another wood-burning fireplace, plus potential for additional finished space. The 1-car garage under and shed provide plenty of storage. The new Weil McLain furnace provides comfort and peace of mind during those cold winter nights. With solid “good bones,” this home is a fantastic opportunity for Buyers looking to move right in and update to create equity in a great Bow neighborhood.

Listing Tools

Property Details of 13 Birchdale Road

Property Details

Interior Features

Exterior Features

Utilities and Appliances

Community

Map Location

Broker Reciprocity 

Copyright 2026 PrimeMLS, Inc. All rights reserved. This information is deemed reliable, but not guaranteed. The data relating to real estate displayed on this display comes in part from the IDX Program of PrimeMLS. The information being provided is for consumers’ personal, non-commercial use and may not be used for any purpose other than to identify prospective properties consumers may be interested in purchasing. Data last updated March 11, 2026 11:26 AM EDT

 

Hi there! How can we help you?

Contact us using the form below or give us a call.

Send Us A Message:

I agree to receive marketing and customer service calls and text messages from Susan Bradley. To opt out, you can reply 'stop' at any time or click the unsubscribe link in the emails. Consent is not a condition of purchase. Msg/data rates may apply. Msg frequency varies. Privacy Policy.

Do not fill in this field:

This site is protected by reCAPTCHA and the Google Privacy Policy and Terms of Service apply.